Eendrachtstraat 6B

Eendrachtstraat 6B

Apeldoorn
€ 485.000,- v.o.n.
Bouwjaar2024
Woonoppervlakte92 m2
Aantal kamers3
energielabelA+++

Over dit huis

Eendrachtstraat 6B

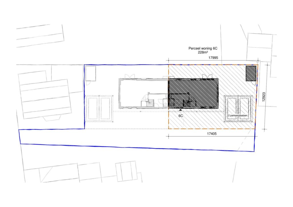
NIEUW TE BOUWEN 2 ONDER 1 KAPWONING MET BERGING EN 2 PARKEERPLAATSEN OP EIGEN TERREIN.
INRUIL EIGEN WONING IS MOGELIJK.

Het object wordt gesitueerd in een besloten zijstraatje nabij de Arnhemseweg.
Eendrachtstraat 6-B is gelegen in de gezellige buurt Zuidwest.

De woning is goed bereikbaar met veel faciliteiten in de buurt. Gelegen op fietsafstand van het centrum van Apeldoorn, loop/fietsafstand van supermarkten, een bus-treinstation en andere openbare voorzieningen.
De autosnelwegen A1 en A 50 liggen op enkele autominuten.

Indeling: Entree, hal, toilet, meterkast, woonkamer met berg/provisiekast en openslaande tuindeuren naar de achterliggende tuin en een open keuken.
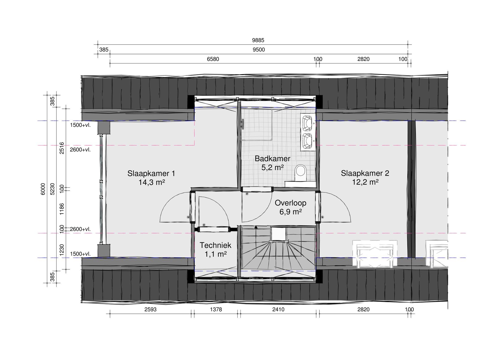
1e verdieping: overloop, 2 slaapkamers, badkamer voorzien van een douche, 2 wastafels, en een technische ruimte.

Het perceel dient nog nader te worden ingemeten en bedraagt indicatief circa 219 m2.
De woonoppervlakte bedraagt circa 92 m2.
De woning wordt voorzien van 8 zonnepanelen en een elektrische warmtepomp installatie.
Het betreft een energiezuinig woning met energielabel A +++.

lees meer

Geïnteresseerd in deze woning?

Stap binnen, voel de ruimte en proef de sfeer. Plan vandaag nog een bezichtiging met één van onze makelaars.

Neem contact op

Kenmerken

Algemeen
Vraagprijs
€ 485.000,-
Aangeboden sinds
24 september 2024
Aanvaarding
In overleg
Status
Beschikbaar
Soort
Eengezinswoning
Soort bouw
Nieuwbouw
Bouwjaar
2024
Ligging
In woonwijk
Oppervlakten en inhoud
Wonen
92 m2
Perceel
219 m2
Inhoud
280 m3
Gebouwgebonden buitenruimte
0 m2
Externe bergruimte
6 m2
Indeling
Aantal kamers
3
Aantal badkamers
1
Aantal slaapkamers
2
Voorzieningen
Zonnepanelen
Energie
Energieklasse
A+++
Isolatievormen
Volledig geïsoleerd
Verwarming
Warmtepomp
Buitenruimte
Tuin
Achtertuin, Voortuin, Zijtuin, Zonneterras
Hoofdtuin
Achtertuin
Hoofdtuin oppervlakte
38 m2
Positie
Zuidwest
Achterom
Ja
Kwaliteit
Aan te leggen
Bergruimte
Soort
Vrijstaand hout
Voorzieningen
Voorzien van elektra
Parkeergelegenheid
Garage
Geen garage
Voorzieningen
Voorzien van elektra
Parkeer faciliteiten
Op eigen terrein
Parkeren capaciteit
2
Dak
Soort dak
Zadeldak
Kwaliteit dak
Pannen
Voorzieningen
Voorzieningen
Zonnepanelen
Overig
Permanente bewoning
Ja
Onderhoud binnen
Uitstekend
Onderhoud buiten
Uitstekend
Huidig gebruik
Woonruimte
Huidige bestemming
Woonruimte
lees meer

Ligging

Eendrachtstraat 6B

HomeOver onsContact